English
Español
Português
русский
Français
日本語
Deutsch
tiếng Việt
Italiano
Nederlands
ภาษาไทย
Polski
한국어
Svenska
magyar
Malay
বাংলা ভাষার
Dansk
Suomi
हिन्दी
Pilipino
Türkçe
Gaeilge
العربية
Indonesia
Norsk
تمل
český
ελληνικά
український
Javanese
فارسی
தமிழ்
తెలుగు
नेपाली
Burmese
български
ລາວ
Latine
Қазақша
Euskal
Azərbaycan
Slovenský jazyk
Македонски
Lietuvos
Eesti Keel
Română
Slovenski
मराठी
Srpski језик Kaikilla Byjinfeng-hitsaushitsaisilla 1 tunnin säteen hitsauslinjoilla on 12 kuukauden takuu, jotka ovat korkein tehokkuuskone, joka lisää loppukäyttäjien tuottavuutta teräsrakenteesta, sillasta, rakenteesta.
|
Malli |
ZHJJ15 |
ZJ18 |
ZHJ20 |
|
T-beam webheight (h) |
200 ~ 1500 mm |
200-1800 |
200–2000 mm |
|
Verkkopaksuus (D) |
6 ~ 12 mm |
6 ~ 19 mm |
6 ~ 30 mm |
|
Laipanleveys (b) |
200 ~ 800 mm |
200 ~ 1000 mm |
|
|
Flangethickness (t) |
6 ~ 25 mm |
6 ~ 40 mm |
|
|
Palkin pituus (l) |
4000 ~ 15000 mm |
4000 ~ 15000 mm |
4000 ~ 15000 mm |
|
Palkkimateriaali |
Q235 |
||
|
Hitsaustyyppi |
Upotettu kaari poikittainen filethitsaus |
||
|
Hitsauslähde |
Yhden langan tai kaksoisjohtimen tyyppi |
Yhden johtimen |
Yhden johtimen |
|
Hitsausnopeus |
200 ~ 1000 mm/min |
||
|
Taskulampun kulma: |
45 ° hienosäätö |
||
|
Hydraulinen paine |
≤14 MPa |
||
|
Flux -palautusjärjestelmä |
2sut |
||
|
Virtauksen tilavuus |
2 × 50L |
||
|
Syöttökuljetinrulla: |
12000 mm |
||
|
Lähtökuljetinrulla: |
12000 mm |
||
|
Pääkoneen teho |
18,0 kW |
||
|
Hydraulinen järjestelmä: |
1set |
||
|
Suoristusyksikkö |
1 asetettu, integroitu koneelle |
||
|
Virtalähde: |
AC/380 V/50 Hz/3PH |
||
|
Suorituskyky |
6-40 mm |
||
3-in 1 tunnin säteen hitsausviivoilla on H-säteen, T-palkkikokoonpanon, hitsauksen ja laipan muodonmuutoksen suoristamisen yhdistelmätoiminto hitsauksen jälkeen. Siten se voi toteuttaa tarkasti ja nopeasti H -säteen ja T -säteen tuotannon. Sillä on seuraavat edut: yksinkertainen toiminta, vähemmän työvoimakustannukset ja pieni peitealue.
Tällä linjalla on kaksi valinnaista hitsausprosessia, jonka voit valita hitsattavan rakenteellisen teräslevyn paksuuden mukaan:
Vaihtoehto A: Yhden kaarin kaksoisjohdehitsaus, jonka saostumisnopeus on 40% korkeampi kuin yleinen yhden kaarin yhden langan upotettu kaarihitsaus, se on erityisen sopiva rakenteen teräspaksuudelle, jonka paksuus on alle 20 mm.
Vaihtoehto B: Yhden kaarin yhden langan hitsaus. Se soveltuu levyn paksuushitsauksen suurempaan alueeseen.
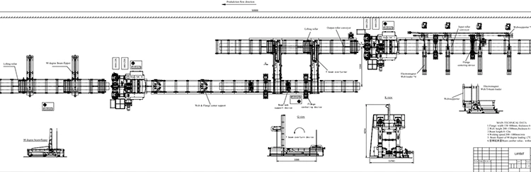
Tavallinen ZHJ3-in 1 H -palkkihitsauslinjat koostuvat yhdestä syöttötelapöydästä, päähitsauksesta ja suoristamisasemasta, lähtötaulukosta. Siellä asennetussa päähitsaus- ja suoristamisasemassa on vuon palautusyksiköt, hitsauspäätä soihtu- ja kiinnityslaitteilla laipan ja verkkoon. Vakiolinja sisältää myös hitsauslähteet, Hydraulic-asema ja kontrollirasia.
1. Standardzhj3-in 1 H-säteen hitsausviivat

2. Vaihtoehto 1:
Asiakkaiden erilaisten pyyntöjen mukaan tarjoamme myös seuraavan thezhj3-in 1 H -säteen hitsauslinjoille:
Perustuen tavanomaiseen 3-in-1 H: n säteen hitsauslinjoihin, lisää yksi sarja web-latainta, joka on konsisisti 4 kpl magneettikuormitusvarsi ja 4kpl Web-kannattajaa. Jokaisessa Web-latausvarressa on 2 kpl magneettia teräsverkkoseuran pitämiseksi.

3. Vaihtoehto 2:
Asiakkaiden erilaisten pyyntöjen mukaan tarjoamme myös seuraavan thezhj3-in 1 H -säteen hitsauslinjoille:
Perustuen tavanomaiseen 3-in-1 H: n säteen hitsauslinjoihin, lisää yksi sarja web-latainta, joka on konsisisti 4 kpl magneettikuormitusvarsi ja 4kpl Web-kannattajaa. Jokaisessa Web-latausvarressa on 2 kpl magneettia teräsverkkoseuran pitämiseksi.
Yllä olevaan perusteella voimme lisätä yhden sarjan 90 astetta säteen läppää lähtörullapöydälle hitsatun säteen kaatumiseksi vaakasuorassa asennossa.

3. Vaihtoehto 3:
Joidenkin asiakkaiden on ehkä lisättävä tuotantotuotantoa, he tarvitsevat yhden hitsauslinjan koostuvan kahdesta hitsausaseman sarjasta. Ensimmäinen hitsausasema hitsaushitsaus 1. laipan ja Webin muodostamiseksi T-palkin muodostamiseksi, toinen hitsatun T-palkkien ja toisen laipan hitsaamiseksi H-säteen muodostamiseksi.
3.1 Joten perustuen tavanomaiseen 3-in-1 H: n säteen hitsauslinjoihin, lisää yksi sarja verkkojen lastainta, joka on peräisin 4 kpl magneettikuormitusvarsi ja 4kpl Web-kannattajaa. Jokaisessa web-latausvarressa on 2kpl magneettia teräsverkkohevyn pitämiseksi.
3.2 Lisää 1 T-palkkien kaatuneiden joukko T-palkin kääntämiseen 180 asteessa ja sijoittaa T-palkki toisen laipan toiseen laippaan toisen hitsausaseman syöttörullapöydälle.
3.3 Lisää yhden sarjan 90 asteen säteen läppää 2nd -hitsausaseman lähtörullapöydälle hitsatun säteen kaatumiseksi vaakasuorassa asennossa.
T Beam- ja H-Beamin tuotantovirtaus
3-in-1 integroitu H-beam-hitsauslinjat asennettuna käyttäjien tehtaalle